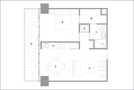
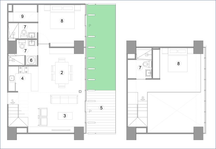
DEPARTAMENTO 201

Esta vez te traemos a BLUM como un desarrollo inovador que cuenta con espacios funcionales, eficientes y lujosos, proponiendo un estilo de vida dinámico y práctico.
Ubicado cerca de las zonas corporativas y universitarias más relevantes en la ciudad de México, Blum cuenta con departamentos de diseño moderno donde vivir en pocos metros, comprende tener todas las comodidades y servicios de un gran condominio residencial.
Diseñado por uno de los despachos de arquitectos más reconocidos en el mundo Ten Arquitectos, Taller de Enrique Norten y construido por Geometrica Developers, Blum consiegue tener una presencia icónica en el horizonte arquitectónico de la zona de Santa Fe y de toda la ciudad de México.
TU ESPACIO
Rodeado de jardín, en medio de la zona urbana más vanguardista del país, las unidades de Blum capturan la esencia de la vida de la ciudad, con espacios logrados e cientemente, la arquitectura de Blum ofrece la oportunidad de adaptarse al estilo de vida que más te acomode.
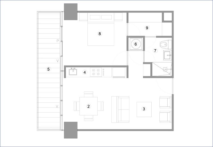
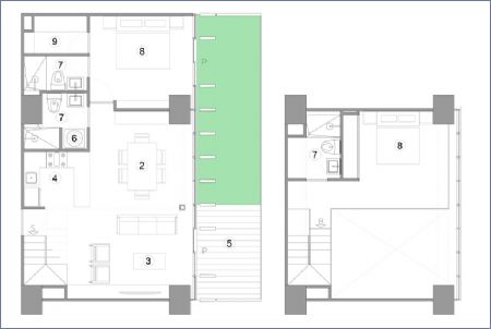
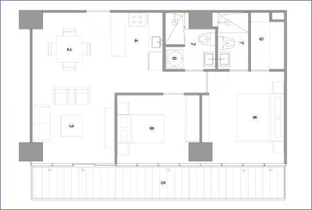
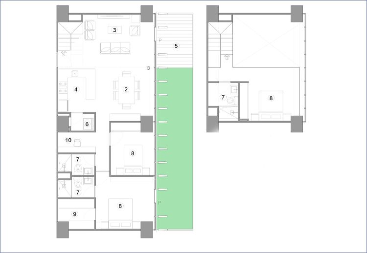
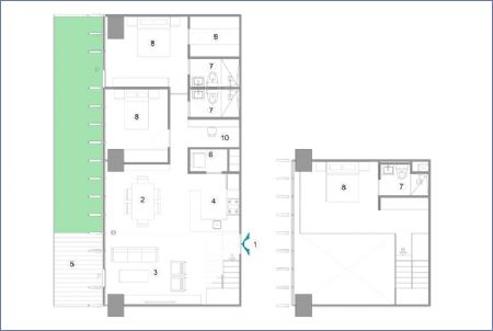
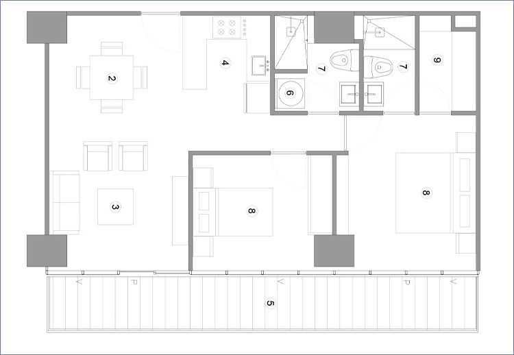
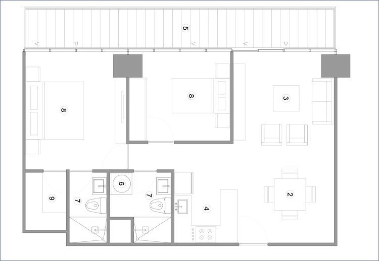
Con espacios desde 60, 64, 68 y 71 m2 (suite), 72, 87 y 89 m2 (dos recamaras con uno o dos baños). Blum es un proyecto diseñado para estar realmente cómodo dentro de cualquier unidad, aprovechando toda el área y minimizando los espacios perdidos.
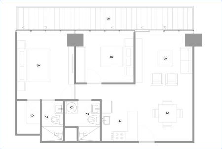
Planta o Tipos de plantas que ofrece Blum en su estado final.
La Colonia Santa Fé se destaca como una de las áreas comerciales y laborales más prominentes y reconocidas en la Ciudad de México. Su paisaje arquitectónico está dominado por imponentes rascacielos, amplias propiedades y desarrollos inmobiliarios estratégicamente situados. Estos imponentes edificios, en su mayoría, albergan sedes corporativas de grandes empresas tanto nacionales como internacionales. Sin embargo, este vecindario también ofrece lujosas residencias y apartamentos, adecuados para satisfacer las necesidades de diversos residentes. ... [leer más]
Desde: 3.666.000 MXN
Desde: 174.571 USD
Inicio de obra: Terminado y Construcción
Entrega: Inmediata y Abril 2026
Forma de pago:
• Reserva: 50.000 MXN
• 150.000 MXN a la firma (1 semana)
• 6 pagos mensuales de 25.000 MXN
• Saldo contra entrega
Financiamos gran parte de su inversión. Además, si no cuenta con un banco, contamos con alianzas que le ayudarán con créditos hipotecarios para el excedente, disponibles tanto para mexicanos como para extranjeros
Playa del Carmen | Tulum | Cancún |
CDMX | Puerto Vallarta | Mérida |
Estados Unidos | Panamá | Rep.Dominicana |
Solicite información sobre la disponibilidad, precios y formas de pago.
Las imagenes y renders aqui contenidos son una representación artística del dibujante del proyecto Blum, por lo tanto las especificaciones de materiales, los detalles de diseño, colores y áreas interiores están sujetas a modificación. Para mayor información solicite la descripción de acabados a su asesor comercial en la Sala de Ventas del proyecto Blum.
Este proyecto esta en construcción, es para inversión y es de uso turístico para la oferta de rentas cortas a través de plataformas digitales como airbnb o booking