botom de whatsapp

Xiib Kaab



PROYECTO DE DEPARTAMENTOS XIIB KAAB

Desarrollo de departamentos: Xiib Kaab

Xiib Kaab es tu entrada a la serenidad, formado por 51 unidades exclusivas, lo invitamos a formar parte de una comunidad privada a tan solo unos pasos del Mar Caribe en Tulum. Descubra un destino único que fusiona lo natural con amenidades de primer nivel y elegancia atemporal, inspirándose en el entorno al que llamarás hogar.

Deléitese en la sofisticación y siéntase en contacto con la naturaleza en el corazón de la Selva Maya. Es su oportunidad de invertir en un estilo de vida creado solo para usted.

Ubicación

Desarrollo que cumple con las tres “U” de éxito inmobiliario: ubicación, ubicación y ubicación. Si estás buscando una propiedad cerca de la playa de Tulum y quieres disfrutar de lo mejor que este destino tiene para ofrecer, no encontrarás nada más cercano que nuestro desarrollo.

Ubicado estratégicamente a solo minutos de la zona hotelera de Tulum, nuestro desarrollo te brinda la oportunidad de vivir cerca de los mejores restaurantes, bares y atracciones de la zona. Ya sea caminando, en bicicleta o en coche, podrás llegar a la zona hotelera, lo que te permitirá disfrutar de todo lo que este paraíso tropical tiene para ofrecer de manera rápida y conveniente.

Además de su ubicación, disfruta de una vista hacia el mar desde su impresionante rooftop. Este es el lugar ideal para aquellos que buscan un estilo de vida privilegiado y una experiencia inigualable.

Amenidades


● Alberca Infinity con vista al mar
● Gym
● Coworking
● Parking & Bicycle Parking
● Grill & Bar
● Zen Garden
● Fire pit
● Alberca en Planta Baja
● Yoga con vista al mar
● Asoleadero




Ubicación Xiib Kaab

Ubicación o localización del proyecto de finca raíz  en venta: Xiib Kaab en Tulum - Tulum - Colombia

 

Ubicación o localización del proyecto de finca raíz  en venta: Xiib Kaab en Tulum - Tulum - Colombia
Xiib Kaab: Para regresar al link de ubicacion

Renders Xiib Kaab

Rende o renders que proyectan el estado final que tandrá Xiib Kaab


Render o imagen número  2
Xiib Kaab : Render 1
Render o imagen número  3
Xiib Kaab : Render 2
Render o imagen número  4
Xiib Kaab : Render 3
Render o imagen número  5
Xiib Kaab : Render 4
Render o imagen número  6
Xiib Kaab : Render 5
Render o imagen número  7
Xiib Kaab : Render 6
Render o imagen número  8
Xiib Kaab : Render 7
Render o imagen número  9
Xiib Kaab : Render 8
Render o imagen número  10
Xiib Kaab : Render 9

Xiib Kaab: Regresar a link de los renders

Plantas Xiib Kaab

Planta o Tipos de plantas que ofrece Xiib Kaab en su estado final.


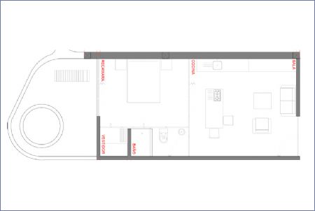
Departamento Tipo A

Imagen de Departamento Tipo A - Xiib Kaab

Departamento Tipo B

Imagen de Departamento Tipo B - Xiib Kaab

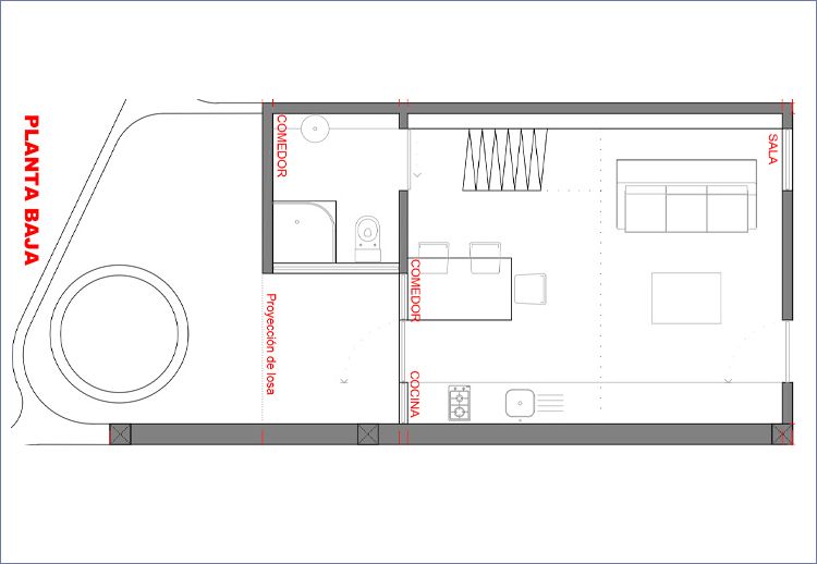
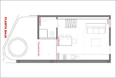
Departamento Tipo C Planta Baja

Imagen de Departamento Tipo C Planta Baja - Xiib Kaab

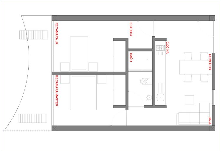
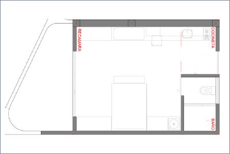
Departamento Tipo C Planta Alta

Imagen de Departamento Tipo C Planta Alta - Xiib Kaab

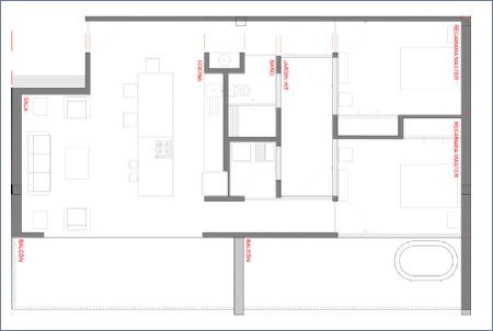
Departamento Tipo D

Imagen de Departamento Tipo D - Xiib Kaab

Departamento Tipo E

Imagen de Departamento Tipo E - Xiib Kaab

Departamento Tipo F

Imagen de Departamento Tipo F - Xiib Kaab

Departamento Tipo G

Imagen de Departamento Tipo G - Xiib Kaab

Departamento Tipo H

Imagen de Departamento Tipo H - Xiib Kaab


Xiib Kaab: Regresar al link de las plantas

Sector de Tulum

En los últimos años, Tulum ha sido un destino atractivo para inversores inmobiliarios debido a su crecimiento turístico y su reputación como un lugar paradisíaco. La inversión inmobiliaria en Tulum ha abarcado diversas áreas, desde hoteles y resorts hasta desarrollos residenciales y comerciales.

Uno de los factores que ha impulsado la inversión inmobiliaria en Tulum es su ubicación en la costa caribeña, con playas espectaculares y un entorno natural único. Muchos inversores han apostado por la construcción de complejos turísticos y hoteles boutique de lujo para atender a la creciente demanda de turistas que buscan experiencias exclusivas y relajantes.

Además de la industria hotelera, el mercado inmobiliario residencial en Tulum también ha experimentado un aumento en la demanda. Muchos compradores internacionales han mostrado interés en adquirir propiedades, como casas y condominios, en esta región. La inversión en bienes raíces residenciales en Tulum puede ofrecer una combinación de oportunidades de inversión y un estilo de vida atractivo, ya que algunas propiedades se encuentran en entornos naturales y privados.

Plan Xiib Kaab


   Gráfica del Precio nacional por unidad o por metro cuadrado Desde: 2.890.000 MXN
   Gráfica del Precio internacional por unidad o por metro cuadrado Desde: 160.556 USD

Plan de Pagos [Solicitar precios actualizados]:

30% enganche - 70% entrega *condiciones
30% enganche - 40% en obra -30% entrega
50% enganche - 30% en obra -20% entrega
80% enganche - 20% entrega - 7% descuento


Financiamos gran parte de su inversión durante construcción. Además, si no cuenta con un banco, contamos con alianzas que le ayudarán con créditos hipotecarios para el excedente, disponibles tanto para mexicanos como para extranjeros




Formulario de contacto

Solicite información sobre la disponibilidad, precios y formas de pago.

Asesoría

Sala de Ventas y Showroom Xiib Kaab

Tulum, México

Móvil

300-8507100

Whatssapp

3008507100

Contenido de esta promoción

Las imagenes aqui contenidas son una representación meramente ilustrativa del concepto arquitectónico de proyecto Xiib Kaab, y no deben entenderse como una reproducción exacta y detallada de los inmuebles aqui publicados. Los precios ofrecidos y las áreas de los inmuebles, están sujetos a variacion según las condiciones del mercado, la disponibilidad de unidades, o los cambios que puedan darse en el diseño del proyecto Xiib Kaab.

Este proyecto esta , es para inversión y es de uso turístico para la oferta de rentas cortas a través de plataformas digitales como airbnb o booking

Xiib Kaab: Para regresar al link de contactos